











Campus Sint-Maarten
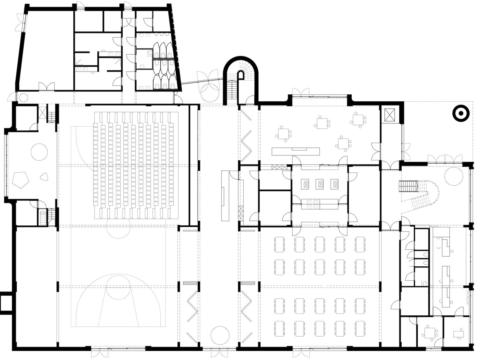
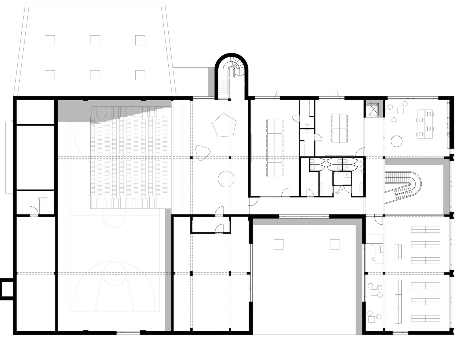
In opdracht van STRABAG Belgium ontwierpen PED architecten en BULK architecten een multifunctioneel gebouw als uitbreiding van de campus Sint-Maarten in Loppem, binnen een Design & Build-formule. Het ontwerp biedt ruimte aan een brede waaier van functies en zet sterk in op flexibiliteit en gedeeld gebruik. Het gebouw omvat onder meer een onthaalbalie, diverse les- en vergaderruimtes, een ontmoetingscentrum, de wijkbibliotheek, een sporthal met refter en een nieuwe muziekschool (DKO). Deze functies worden op een efficiënte en samenhangende manier geïntegreerd, met aandacht voor circulatie, toegankelijkheid en ruimtelijke beleving. PED architecten stond in voor de ontwikkeling van een gedetailleerd en volledig uitgewerkt BIM-model. Dit model diende als basis voor technische calculaties, coördinatie tussen bouwpartners en de visuele presentatie van het ontwerp, en speelde een centrale rol in het ontwerp- en uitvoeringsproces.