1273.NAC.004.cam C3
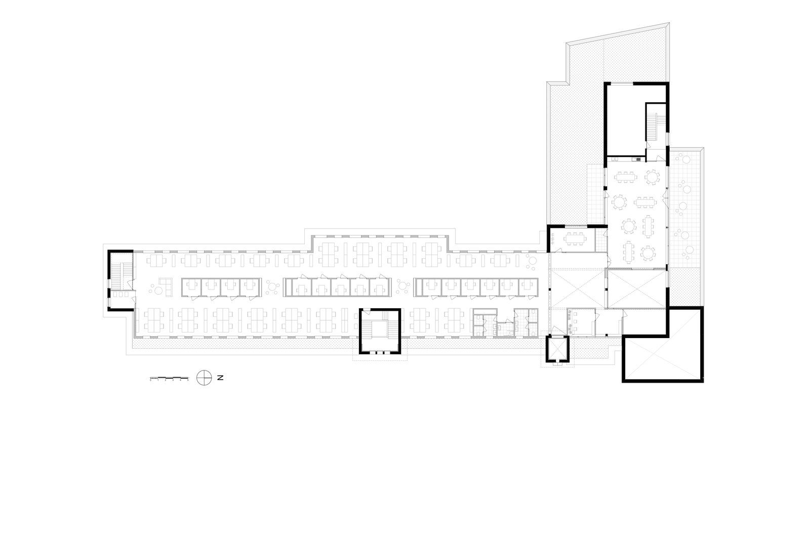
niveau +0
niveau +0
niveau +1
niveau +1
niveau +2
niveau +2
1273.NAC.006.cam E4 cropped
1273.NAC.005.cam F3
1273.NAC.006.cam G6
1273.NAC.004.cam A2
1273.NAC.004.cam B

PPS Beerse

Dit voorstel voor het nieuwe Dienstverleningscentrum in Beerse is het resultaat van een samenwerking tussen PED architecten en DMT architecten, in onderaanneming voor ontwikkelaar Vanhout. Het project omvat de grondige renovatie en uitbreiding van de bestaande Sint-Jozefkliniek aan de Bisschopslaan te Beerse, die zal worden herbestemd tot een multifunctioneel gebouw met het gemeentehuis, de bibliotheek en diverse vrijetijdsvoorzieningen. De erfgoedwaarde van het bestaande gebouw wordt erkend en vormt een leidraad binnen het ontwerp. De uitbreiding van het Dienstverleningscentrum gebeurt via een haaks volume aan de zijde van het park De Echelpoel. De plint van dit nieuwe volume wordt opengewerkt om een sterke visuele en functionele connectie te creƫren tussen het park en de gelijkvloerse publieke ruimtes. Centraal in het ontwerp staat een tribune die fungeert als spil van het ensemble. Dankzij de open plint biedt deze tribune een directe blik op het idyllische parklandschap. Een royale vide over twee verdiepingen boven de tribune versterkt de ruimtelijke beleving en laat daglicht diep doordringen tot in de kern van het gebouw. De optopping boven het bestaande gebouw huisvest de administratieve functies van de gemeente.

Projectnummer
24000-07
Locatie
Beerse
Fase
C niet uitgevoerd